Zamknij

Jako pierwsi prezentujemy nowe koncepcje zagospodarowania działki w centrum Kraszewic

. 16:44, 27.09.2025 Aktualizacja: 21:28, 01.10.2025
Skomentuj

Gmina Kraszewice dysponuje już dwiema koncepcjami zagospodarowania działki w centrum Kraszewic, jakie wykonała dla niej pracownia architektoniczna DASTORE. Prezentujemy je jako pierwsi. Jest dobrze, ale mogłoby być lepiej.

[FOTORELACJA]2315[/FOTORELACJA]

Temat zagospodarowania zakupionej ponad 10 lat temu od Parafii działki w centrum Kraszewic co rusz powracał jak bumerang i… znikał. Co prawda wcześniej ówczesny wójt Kraszewic Paweł Koprowski ogłosił konkurs na koncepcję zagospodarowania tego terenu, który wygrał projekt przygotowany przez firmę DASTORE, jednak jak dotąd nie został on w całości zrealizowany. Wybudowano jedynie Przedszkola ze Żłobkiem oraz dwa (przedszkolno-żłobkowy i ogólnodostępny) place zabaw.

Tymczasem koncepcja ta przewidywała również budowę parku doświadczeń, gdzie zainstalowane miały być urządzenia terenowe z zakresu geografii, fizyki czy astronomii, stworzenie strefy zieleni parkowej (nasadzenia wzdłuż głównych ciągów z przewagą gatunków rodzimych, np. głogu pośredniego, brzozy, klonów oraz wiśni ozdobnych, a także lawend i traw ozdobnych, które miały tworzyć wrażenie lekkiego parkowego wnętrza, jednocześnie eksponując znajdujące się w pobliżu kościół z plebanią). Główny plac w założeniu urbanistycznym miał łączyć istniejący przystanek z otoczeniem. Jego największą atrakcją miała być fontanna.

Powstać też miała – w formie klasycznego labiryntu z niskiego żywopłotu - strefa prof. Mariana Falskiego - Falski–BIRYNT. Projekt zakładał też powstanie: strefy wiedzy o źródłach odnawialnych ECO (m.in. przykłady elektrowni wiatrowych w formie stacjonarnej z opisem ich działania, zalet i wad, czy stacjonarne przykłady ogniw fotowoltaicznych i kolektorów). Zaplanowano też miejsce rekreacji dla osób z różnych grup wiekowych, czyli strefę zdrowia. W ramach strefy powstać miała m.in. siłownia terenowa.

10 lat to jednak szmat czasu, stąd opracowane w tym roku koncepcje w dużej mierze odbiegają od tej z 2015 r. Tym bardziej, że każda z nich musiała uwzględnić powstałą na działce w ostatnim czasie i budzącą wiele emocji tzw. bieżnię, która w znaczny sposób ograniczyła możliwości zagospodarowania tego terenu.

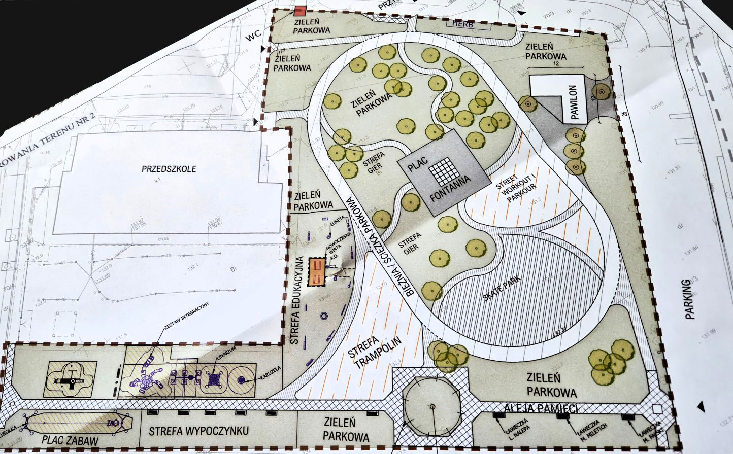
I tak, zarówno koncepcja nr 1, jak i koncepcja nr 2, zakładają, że w centrum placu powstanie fontanna, którą okalać będzie tzw. bieżnia, czy jak kto woli ścieżka parkowa. Choć kto wie, kiedyś Kraszewice słynne były na całą okolicę z postawionego mniej więcej w tym miejscu, przyznać trzeba, że na wskroś oryginalnego przystanku autobusowego, to może teraz równie oryginalna bieżnia też przyniesie rozgłos gminie. Autor tego przystanku zapewniał wtedy, że są takie dwa w Europie: w Kraszewicach i gdzieś pod Paryżem.

KONCEPCJA nr 1

I tu i tu przewidziano duże połacie zieleni parkowej, drzewa, strefę wypoczynku i nowoczesną wiatę, która architektonicznie miałaby współgrać z bryłą przedszkola.

W koncepcji nr 1 przewidziano m.in. budowę kolejnego placu zabaw, strefy workoutu, co ucieszy zapewne młodzież, strefy edukacyjnej z ławka solarną, stanąć też miały karuzela, linarium i zestaw integracyjny.

Powstać miałaby też aleja pamięci - istniejąca ścieżka prowadząca od parkingu przy ul. Szkolnej do cisu ,,Bożydar’’, wzdłuż której postawione byłyby ławeczki: autora Elementarza Mariana Falskiego, dobrodziejki Kraszewic Marianny Miletich i wieloletniego dyrektora szkoły Leona Nalepy. Niestety nie dopatrzyliśmy się w tej koncepcji stojącej obecnie obok cisu ławeczki wybitnego kryptologa Jerzego Różyckiego, który razem z Marianem Rejewskim i Henrykiem Zygalskim złamali szyfr niemieckiej maszyny szyfrującej Enigma, a którego ojciec przez jakiś czas prowadził w Kraszewicach aptekę.

Jest też tężnia, a wewnątrz ,,bieżni’’ obok fontanny zaplanowano budowę amfiteatru z mobilną sceną. Przewidziano też miejsce dla stacji ładowania hulajnóg i placu z hamakami, dużo ławek i drzew. Od strony przystanku zaplanowano postawienie WC, a od strony parkingu znaleźć by się miał niewielki budynek, w którym znalazłoby się miejsce dla biblioteki (chyba raczej punktu bibliotecznego) i lokalu usługowego, gdzie można by wypić kawę, zjeść ciastko czy kupić jakąś pamiątkę.

W koncepcji nr 2 wiele elementów się powtarza, nie ma już za to biblioteki, a tylko mały pawilon usługowy, dochodzą za to strefy: edukacyjna, gier, trampolin, workoutu, skatepark i parkour.

Jak podkreśla wójt Pijanka, opublikowane koncepcje nie są ostatecznymi wersjami, które będą poddane pod konsultacje mieszkańców. - Prace nad projektem jeszcze trwają - informuje. Rzeczywiście, z wstępnej oceny radnych wynika, że z koncepcji nr 1 zniknie tężnia, toczą się dyskusje co do ostatecznego kształtu, wielkości (i lokalizacji) biblioteki, najpewniej zabraknie też wiaty, amfiteatru i sceny mobilnej. Wiata może też zniknąć z koncepcji nr 2.  JUR

KONCEPCJA nr 2

TAK TO WIDZĘ

Która z przygotowanych koncepcji spełni marzenia i oczekiwania mieszkańców? Zobaczymy. Niewątpliwie jedna i druga godne są uwagi i najpewniej uda się z nich stworzyć tą jedną, bliską ideału.

Dziwi jedynie tak obcasowe potraktowanie Biblioteki, co wpisuje się – jak dotąd – w tyleż pasywne, co zadziwiające podejście władz samorządowych do tego tematu. Jeśli miałaby tu powstać jedynie jej namiastka, to lepiej niech nie będzie jej w tym miejscu wcale. Argument, że jest przecież Internet, więc po co nam biblioteka, do mnie akurat nie przemawia. To ma być nie tylko znana z XX wieku biblioteka, gdzie są książki, które się wypożycza, ale wielofunkcyjne Centrum Biblioteczno-Kulturalne, które tętni życiem. Gdzie obok zbioru książek, wypożyczalni i sali multimedialnej byłaby jeszcze sala np. na 100-120 osób, w której odbywałyby się minikoncerty czy recitale, spotkania z ciekawymi ludźmi, np. podróżnikami, pisarzami czy artystami, jak również zajęcia pracowni tematycznych czy warsztaty. Takie centrum mogłoby też być miejscem promującym lokalną tradycję i kulturę, gdzie dbano by też o rozwój amatorskiego ruchu artystycznego. 

A już grzechem byłoby nie znaleźć w nim miejsca dla niezwykłych zbiorów muzealnych pani Bożeny Zadki. To nasze przeszłość, nasze dziedzictwo… Przecież człowiek, żeby być kimś, musi być skądś. Właśnie to ,,skądś’’ byłoby sensem powstania takiej izby regionalnej.

Wiem jedno, mądra społeczność będzie umiała zadbać o to, aby z wypożyczalni zbiorów biblioteka ta zmieniła się w miejsca aktywności lokalnej społeczności. Mówi się, że kiepskie biblioteki tworzą kolekcje, średnie – tworzą usługi, te najlepsze – tworzą społeczności.

Pomysł budowy w pobliżu kościoła amfiteatru też nie bardzo mi odpowiada, tym bardziej, że zapadła już w zasadzie decyzja o gruntownej modernizacji amfiteatru na Placu im. Edwarda Gołdyna przy sali OSP, na co pójść mają m.in. środki z funduszu sołeckiego Kraszewic. I ta scena mobilna. Przypomina mi się, jak unikalny przecież przystanek był przewożony na kółkach z Mącznik do Kraszewic. Więc też był mobilny?

Cieszą niewątpliwie strefy sportowo-rekreacyjne będące ukłonem w stronę młodzieży, typu trampolina, skate park czy parkour. Fontanna? Super. Toaleta? Jak najbardziej, tylko niekoniecznie w tym miejscu. I nie daj Boże, aby klucz do niej był zdeponowany u sołtyski lub w Urzędzie Gminy, tak jak na Końcu Świata. Chociaż… w Kraszewicach władza solecka i gminna mieszczą się o wiele bliżej od będącej w planach toalety, więc kto wie, może i będzie można zdążyć. 

Najważniejsze, że pierwszy krok już za nami. Presja naprawdę ma sens.

Jerzy Bińczak

 

 

 

(.)

Co sądzisz na ten temat?

podoba mi się 0
nie podoba mi się 0
śmieszne 0
szokujące 0
przykre 0
wkurzające 0
Nie przegap żadnego newsa, zaobserwuj nas na
GOOGLE NEWS
facebookFacebook
twitter
wykopWykop
komentarzeKomentarze

komentarze (0)

Brak komentarza, Twój może być pierwszy.

Dodaj komentarz

0%