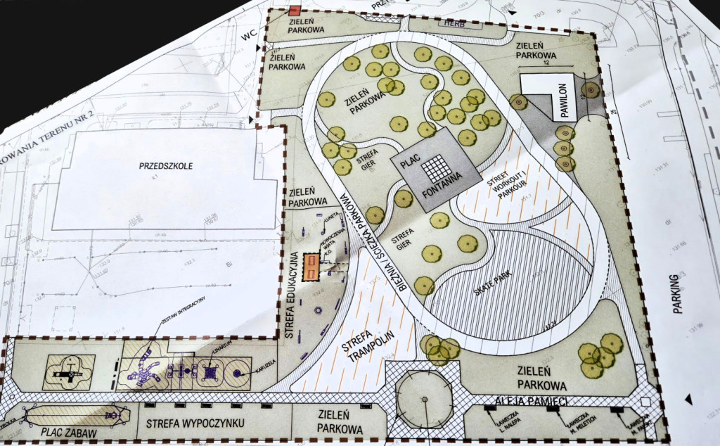
Tak chcą zagospodarować działkę w centrum Kraszewic
Gmina Kraszewice dysponuje już dwiema koncepcjami zagospodarowania działki w centrum Kraszewic, jakie wykonała dla niej pracownia architektoniczna DASTORE. Prezentujemy je jako pierwsi. Jest dobrze, ale mogłoby być lepiej.